ПРОЕКТ KRAAS
- Объект | Загородный дом
- Площадь | 285 м²
- Год | 2023
Загородный дом для двух человек
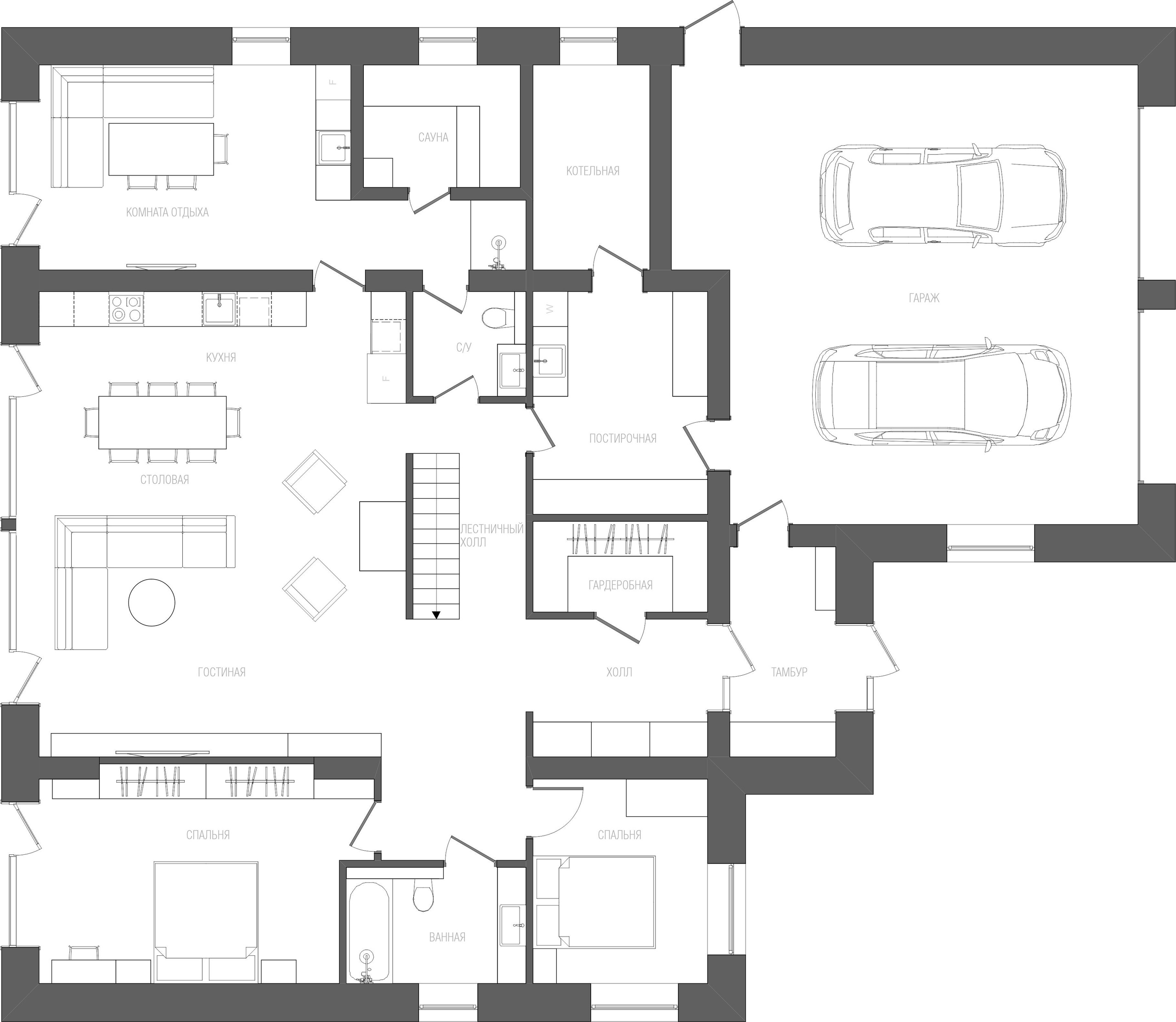
Планировочное решение
Дом предназначен для двух человек и разделен на гостевую, хозяйскую и техническую зоны. В гостевой зоне расположились: просторная кухня-гостиная со вторым светом и лестницей на 2 этаж, небольшой гостевой санузел и отдельная зона отдыха с настоящей дровяной сауной.
Хозяйская зона обособлена от основной и включает в себя: спальню хозяев, небольшую гостевую спальню и ванную с окном. К технической зоне относятся: гараж на две машины с отдельным входом из тамбура, гардеробная в холле, отдельное просторное помещение постирочной и котельная.
Интерьер кухни-гостиной
Высокие входные двери и двери из тамбура выполнены из стекла, благодаря этому холл имеет естественное освещение. Из тамбура есть отдельный вход в гараж. Небольшое фойе оборудовано встроенным шкафом, который аккуратно вписывается в углубление стены, и отдельной гардеробной для хранения верхней одежды и других вещей.
Гостиная комната просторная и светлая, со скатной крышей и вторым светом, создающим ощущение пространства и воздушности. В центре комнаты расположен настоящий камин, облицовка которого выполнена из натурального черного мрамора, что делает его главным акцентом интерьера. Камин имеет сквозной вид, что позволяет любоваться огнем из любого уголка помещения, несмотря на это у камина организована отдельная зона отдыха в виде пары мягких кресел. С торца этого камина в коробе находится встроенная дровница из тонкого черного металла.
Лестница, спрятанная за камином, ведет на мансардный этаж — дополнительное пространство для отдыха.
Фартук кухни, столешница и обеденный стол сделаны из того же мрамора, что и камин. Кухня расположена в одном из углов комнаты и гармонично сочетается с зоной ТВ, расположенной в противоположном конце. Обе эти зоны выполнены в деревянных панелях с темно-графитовыми фасадами.
Деревянный потолок с балками добавляет тепла и уюта в интерьер. Огромное витражное окно, повторяющее контур потолка, обеспечивает естественное освещение и позволяет любоваться видом на окружающий ландшафт.
Интерьер спален
По левую сторону при входе расположена спальная зона, состоящая из спальни хозяев, гостевой комнаты и отдельной ванной с окном. Интерьер спальни выполнен в спокойных натуральных серо-кофейных тонах, создавая атмосферу уюта и умиротворения.
Большая мягкая кровать занимает центральное место в комнате, ее изголовье украшено деревянными реечными панелями, которые придают помещению теплоту и натуральность. Рядом с кроватью у большого окна расположился изящный консольный туалетный столик, его зеркало выполнено от пола до потолка, что визуально помогает расширить пространство.
Напротив кровати встроен вместительный шкаф для одежды с открытыми декоративными отсеками с подсветкой. Особый шарм интерьеру придает высота скатного потолка с большим витражным окном, которое повторяет его форму. Потолок, обшитый деревянными рейками, повторяет дизайн стены за кроватью, добавляя камерности и уюта высокому помещению.
Напротив мастер-спальни расположилась комната для гостей, которая при достаточно небольшом размере 10 м. кв. оснащена всем необходимым. Общий дизайн повторяет стиль хозяйской спальни. Зеркальная дверь визуально расширяет пространство.
Ванные
Интерьер ванной комнаты выполнен в темных тонах. Благодаря естественному освещению, комната не выглядит мрачной. Керамогранит на полу и стене за умывальником имитирует дерево, добавляя тепла в интерьер. Умывальник изготовлен из бетона и дополнен подвесной тумбой с фасадами, также имитирующими бетон. Зеркало с мягкой подсветкой по периметру завершает образ. Напротив находится ванна, и полки для хранения косметических принадлежностей и декора над инсталляций.

































































