ПРОЕКТ EME
- Объект | Квартира
- Площадь | 135 м²
- Год | 2019
Квартира расположена в жилом квартале «Жуковка»
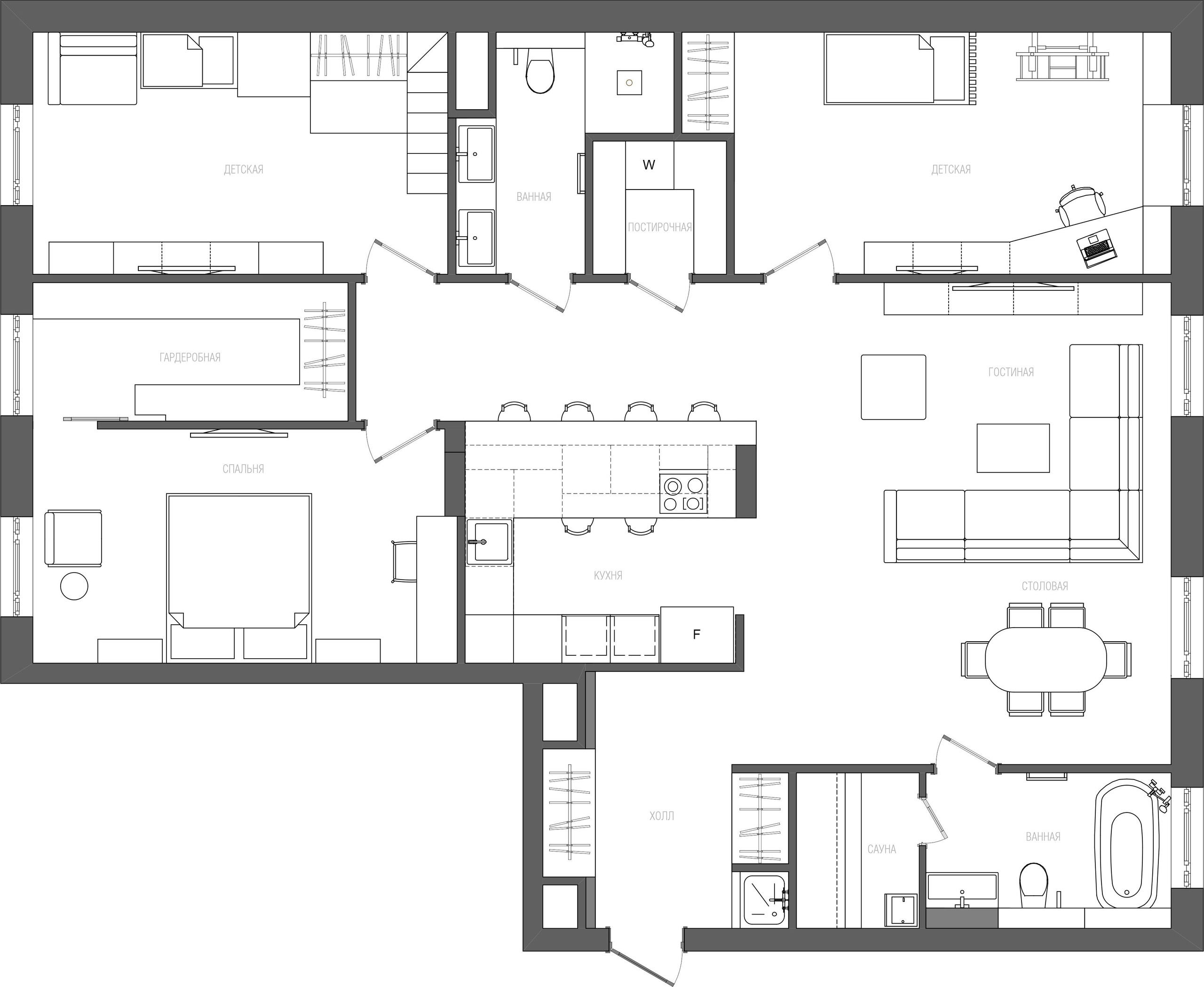
Планировочное решение
Это квартира площадью 135 м² в современном стиле для четырех членов семьи: родителей и двоих детей, расположена в жилом квартале «Жуковка».
Застройщиком была предложена свободная планировка с выделением мокрых зон. Между двумя массивными колоннами во центру квартиры разместили зону кухни, у окна обеденный стол и просторная зона отдыха с большим диваном. Холл получился обособленный от основной квартиры, что является удачным решением, т. к. грязная входная зона является непроходной. На входе в шкафу расположена техническая раковина для удобства, где можно помыть обувь или лапы собаке, не проходя в основную часть квартиры. Также удалось разместить спальню хозяев с просторной отдельной гардеробной, детские и две полноценных ванные комнаты, в одной из которых расположилась сауна. Преимуществом планировки также стало отсутствие коридоров: распределение по комнатам осуществляется через зону кухни-гостиной.
Интерьер кухни-гостиной
Общая концепция интерьера — взаимодействие двух стихий: земли и воды. Эту идею отражает картина, которая была написана художницей специально для этого проекта. Картина стала и основным акцентом, и отправной точкой всего интерьера, вобрав в себя все его главные краски.
Чтобы избежать хоровода дверей, были установлены двери скрытого монтажа, что позволило получить чистое лаконичное пространство. Двери выполнены в той же декоративной штукатурке, что и стены, и это усиливает эффект их невидимости. Две двери в подсобные помещения напротив кухни представляют собой большие зеркала, они визуально расширяют пространство и разбавляют однородность длинной стены, делая ее более живой и интересной за счет игры отражений.
Интерьер спальни
Тематика стихий продолжается и в спальне: стена за кроватью выполнена в декоративной штукатурке красивого глубокого цвета морской волны. С этим цветом идеально сочетаются рейки, из натурального массива дерева с красноватым отливом, которыми декорирована стена. Подвесные прикроватные тумбы, туалетный столик также сделаны из этого дерева, что подчеркивает единый стиль интерьера.
Напротив кровати расположен телевизор, а скрытая дверь у окна ведет в собственный вместительный гардероб — это идеальное решение для хранения одежды и аксессуаров, позволяющее сохранить порядок в комнате и сэкономить пространство.
Интерьер детских
Детская для мальчика решена в яркой и динамичной футбольной тематике, отображающей интересы хозяина комнаты. Спальная зона с кроватью зонирована от основного помещения рейками из массива дерева белого цвета, перетекающими на потолок, создавая своеобразную ширму, разделяющую комнату на зоны. Рядом расположен игровой комплекс, где ребенок сможет активно проводить время, развивая свои спортивные навыки. У окна в этой детской комнате оборудована удобная зона хранения. Стеллажи для книг и игрушек интегрированы на широкий подоконник, что позволяет максимально эффективно использовать доступное пространство. Напротив кровати в детской комнате располагается зона с рабочим столом и телевизором.
Вторая детская предназначена для маленькой девочки, выполнена в сочетании постельных тонов — нежно-лилового и мягкого серого. Напротив входа находится игровой домик под потолком, под ним шкаф для одежды, а в ступени лестницы встроены выдвижные ящики для хранения игрушек и других мелочей. На одной из стен нанесена меловая краска в виде забавного медвежонка, что позволяет рисовать не повреждая стены. Для малышки установлена удобная кроватка, а рядом с окном располагается небольшой диванчик, на котором мама может сидеть и наблюдать за ребенком.
Напротив кроватки находится зона хранения в виде стеллажей, выполненных в виде домиков. Также в комнате предусмотрена зона для ТВ, который пока не установлен, но в будущем, когда малышка подрастет, здесь можно будет смотреть мультфильмы и детские передачи.
Интерьер ванных
Недалеко от входа расположилась гостевая ванная с окном. Напротив входа в ванную комнату расположен умывальник с красивым круглым зеркалом, которое оснащено подсветкой. Особое внимание привлекает островная ванна, расположенная у большого окна. Она установлена на небольшом подиуме, что добавляет дополнительный акцент на этом элементе. Напротив окна располагается сауна, отделенная от основного пространства стеклянной перегородкой. Стена сауны выполнена из светящихся соляных блоков, что добавляет уникальную атмосферу тепла в сдержанную палитру ванной.
Благодаря грамотной планировке удалось вместить санузел с большой душевой и помещение постирочной с отдельным входом, не выходя за рамки мокрой зоны. Ванная комната выполнена в современном стиле с преобладанием светлых тонов. Вместительная душевая находится в нише и имеет стеклянную перегородку, которая обеспечивает приватность и сохраняет пространство. Каменная столешница установлена вдоль стены и служит основанием для двух умывальников. Над ними расположено большое зеркало, которое занимает всю стену и имеет встроенную подсветку. Такое зеркало не только выполняет свою основную функцию, но и добавляет света в помещение. Несколько зеркал, многократно отражая предметы, раздвигают границы помещения и создают интересный эффект повторения пространства.

































































