ПРОЕКТ OX
- Объект | Квартира
- Площадь | 109 м²
- Год | 2019
Трехкомнатная квартира в жилом комплексе «Переулок Бульварный»
Интерьер кухни-гостиной
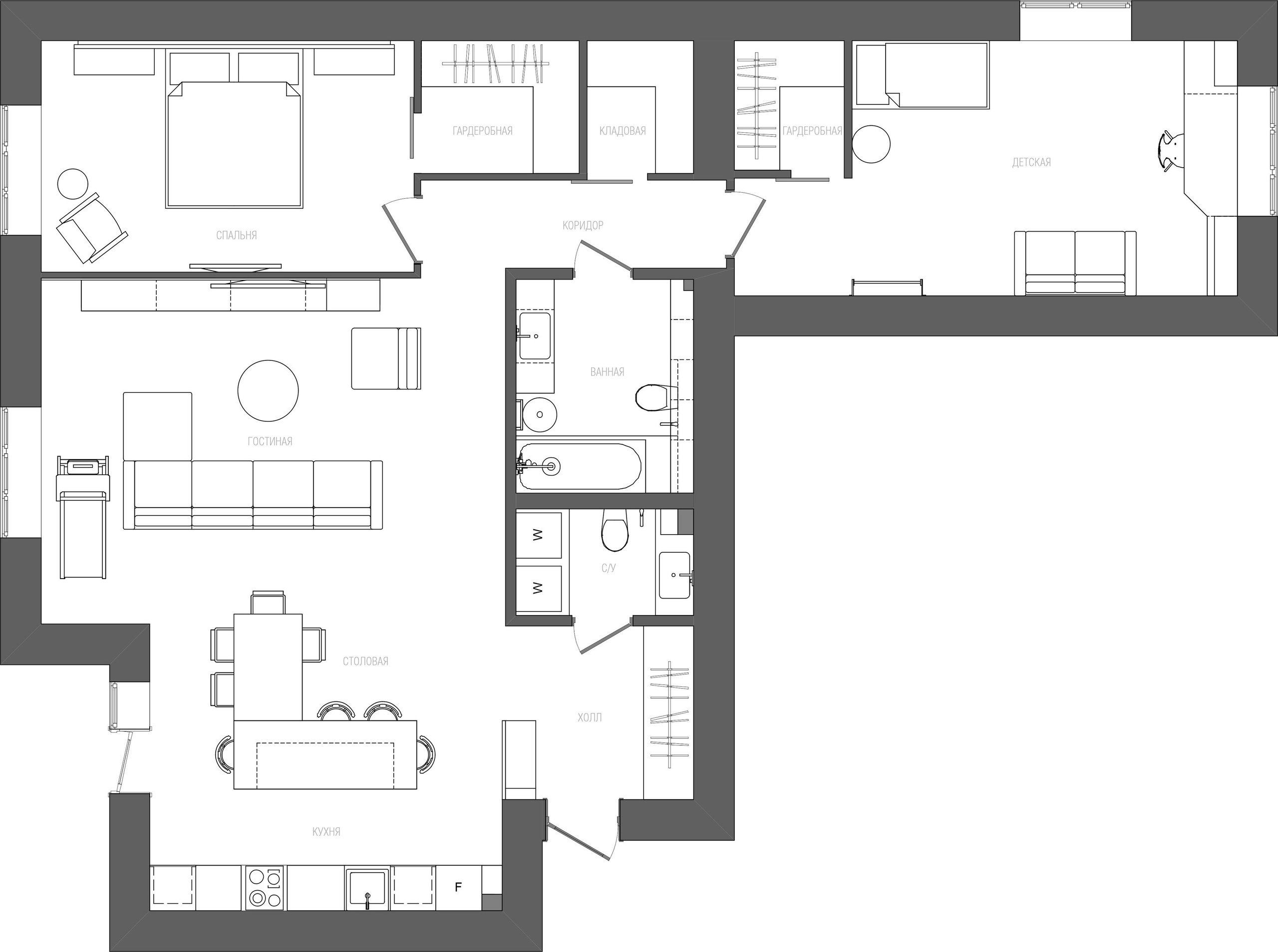
Преимуществом этой квартиры является разделение на гостевую зону: кухня-гостиная, холл, гостевой санузел; и приватную зону: спальня с гардеробной, детская и хозяйская ванная. Входная зона расположена в непосредственной близости от кухни, исправить это неудачное соседство помогла светопрозрачная реечная перегородка, с зеркалом на две стороны.
В кухне расположилась большая островная зона с примыкающим к ней обеденным столом. Столешница острова выполнена из того же искусственного камня, что и рабочая зона с фартуком, но имеет большую толщину, чтобы подчеркнуть масштабность конструкции. Изюминкой интерьера, притягивающей взгляд, является настенное панно из МДФ, покрытого декоративной штукатуркой, с бронзовыми вставками. В этом же материале выполнена тумба под ТВ. За ТВ расположена панель в декоративной штукатурке под замшу, имеет глубокий синий оттенок, и обсалютную матовость, что создает визуальный эффект бархатистой поверхности.
Интерьер спальни и детской
Интерьер спальни выполнен в спокойных нейтральных тонах. Центральным элементом комнаты является кровать с большой мягкой панелью в изголовье. По правую сторону от кровати расположена скрытая раздвижная дверь, ведущая в гардеробную. Дверь выполнена в тон стен, что делает ее практически незаметной и позволяет сохранить целостность интерьера. В гардеробной предусмотрены полки для хранения одежды, обуви и аксессуаров, а также зеркало в полный рост.
Детская изначально имела продолговатую форму, добавив небольшую гардеробную на входе, мы придали помещению более правильную форму. Это детская для мальчика, на момент проектирования малыш еще не появился, поэтому детская сделана немного «на вырост». Интерьер детской комнаты выполнен в пастельных тонах: сочетание кремового и фисташкового оттенков на стенах делает комнату светлой и просторной. Для малыша предусмотрена удобная и функциональная кроватка, которая обеспечивает комфортный сон и отдых.
Рядом с кроваткой находится мягкий диванчик для мамы, которая может находиться рядом с малышом во время его сна или кормления. Уголок с мягким основанием и подушками позволяет обеспечить удобное место для занятий и игр. Также в комнате есть стол и место для хранения игрушек и других детских вещей, а в будущем школьных принадлежностей
Ванные
Интерьер ванной комнаты выполнен в керамограните под темный бетон, который придает помещению интерьеру строгость. Умывальник на подвесной тумбе с толстой каменной столешницей гармонично вписывается в общую стилистику интерьера. Круглое зеркало над умывальником с подсветкой не только служит функциональным элементом, но и добавляет помещению света и объема.
Стена над ванной оформлена керамогранитом под дерево с необычной раскладкой в виде французской елочки, она является центральным элементом интерьера и привлекает к себе внимание своей простотой и оригинальностью. Ванна и инсталляция также отделаны этим керамогранитом, что создает ощущение целостности интерьера. Композиция из подвесных шкафов, расположенных над инсталляцией, включает в себя как закрытые, так и открытые секции, которые позволяют удобно разместить все необходимые принадлежности и аксессуары.
Гостевой санузел выдержан в той же стилистике, с использованием керамогранита под темный бетон, деревянным элементом выступают детали мебели. Умывальник на массивной каменной столешнице вписан в мебельную композицию с зеркалом и полочками для туалетных принадлежностей. Напротив умывальника функциональный хозяйственный шкаф со спрятанной стиральной машиной, вмещает все необходимое, сохраняя при этом эстетику пространства.




















































